Veramendi
Small Town Charm Meets Big City Convenience
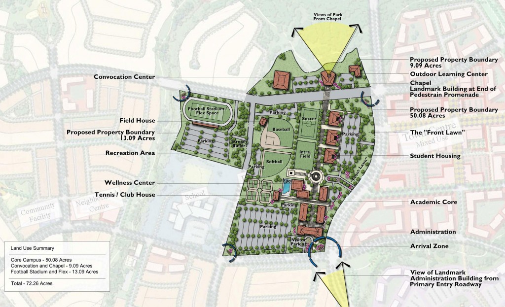
The 2,430-acre Veramendi community is located midway between Austin and San Antonio in an area poised for substantial growth. The community will feature a mix of high- and medium-density multifamily residential, as well as traditional single family homes. The development is also planned for 380 acres of non-residential uses, including a medical campus for the Christus Santa Rosa Health System and an extension campus for Howard Payne University. Other planned uses include a town center, retail, corporate campuses, a hotel, and two elementary schools.
RVi is providing planning and landscape architecture services for the project, including an extensive park, trail, and open space system, collaboration on the creative stormwater management system, and assistance with site planning options for Howard Payne University. The site is located along 1.5 miles of Guadalupe River frontage.







