TRACE
Rich in History, Rooted in Texas
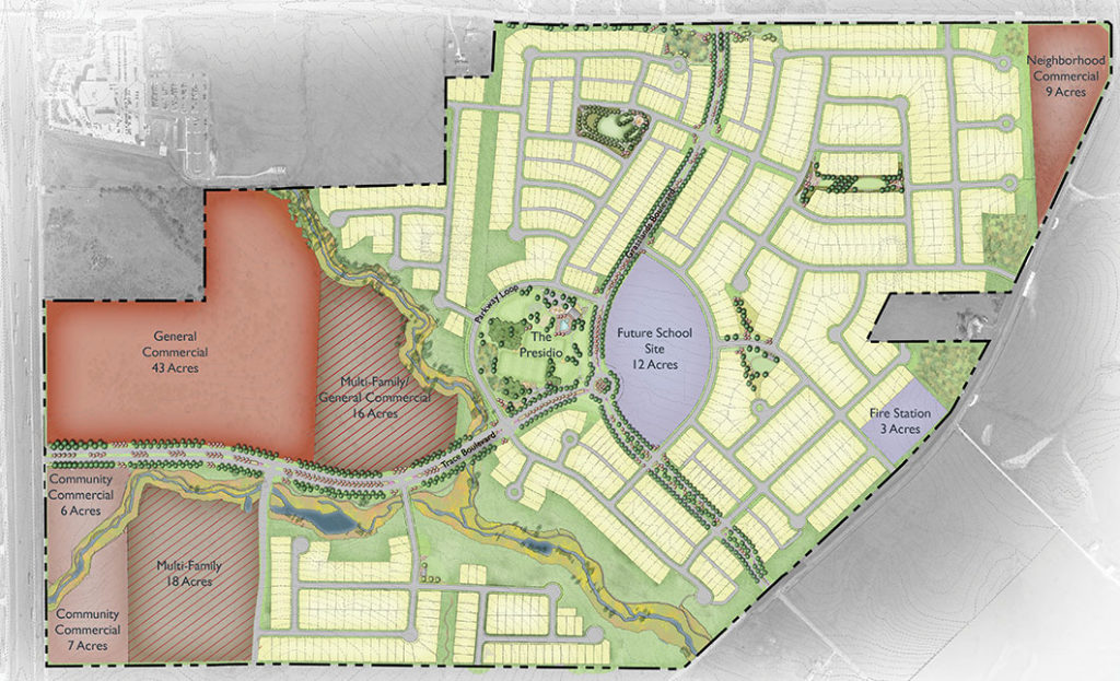
Bordered by the historic El Camino Real de Los Tejas, a National Historic Trail once traveled by Spanish explorers and missionaries in the 1700s, TRACE is embracing the site’s heritage and writing a new chapter in the story with the theme “Rich in History, Rooted in Texas.” Trace is poised to bring almost 1,000 new single family homes along with 850 multi-family residential units to San Marcos. Targeting San Marcos’ younger demographic, TRACE provides a live-work-play community complete with a 9-acre central park, miles of trails, a school site, and over one million square feet of business and commercial uses.
Team
Chris Crawford
Peter Dufrene





